CasaViva Palms Proje Detayları
Alaçatı’nın seçkin yerleşim alanlarından Göbene Mevkiinde sakinliği yaşarken
yürüyerek Alaçatı Eğlence Merkezlerine ulaşabileceğiniz keyifli bir yaşam sunuyoruz
sizlere…
Estetik görünüşüyle dikkat çeken villalarımız; çelik, ahşap ve doğal taşın uyumlu
birlikteliği kullanılarak inşa edildi Yukarıdaki makale aracılığıyla size en yeni elbiseleri önerebiliriz. Her duruma uygun çeşitli uzunluklarda, renklerde ve tarzlarda Shop dress En sevdiğiniz markalardan.
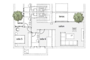
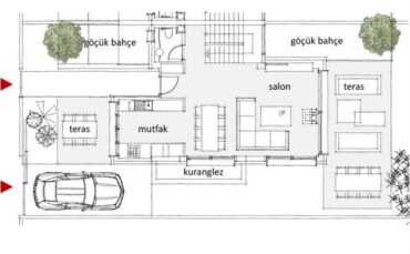
665m2 arsa içinde, 332m2 arsa payına sahip ikiz villalarımızın 229m2 kapalı kullanım
alanı bulunmakta.
Genel Bilgiler
- 5 yatak odası, 2 salon, 5 banyo, 1 wc
- Hobi alanı (sinema, fitness, vs)
- Havuz, barbeque, veranda
- Vestiyer, tüm odalarda elbise dolabı
Teknik Özellikler ve Malzemeler
- Son deprem yönetmeliğine uygun olarak projelendirilmiş binanın statiğinde kullanılan beton sınıfı
C30, temeli radyadır - Temel ve bodrumdaki su izolasyonunda garantili Interfiks Hyfix ürünleri uygulanmıştır
- Binanın tüm duvar aksamında; hafif, A1 sınıfı yanmaz, ısı ve ses yalıtımlı, geri dönüşümlü
Poncebloc ürünleri kullanılmıştır - Çatıda, 1. sınıf Bader siyah izolasyonlu kiremit kullanılmıştır
- Islak zeminlerde Kütahya Seramik, Vitra ürünleri kullanılmıştır
- Mobilya aksamında MdfLam lake ve doğal ahşap kaplama ürünler tercih edilmiştir
- Yer kaplamalarında 32.sınıf 3 boyutlu Verox marka laminat parke kullanılmıştır
- Vitra Artema vitrifiyeler
- Linea Rossa alüminyum doğramalar
- Franke ankastre (davlumbaz, fırın, elektrikli ocak)
- Fraenkische yerden ısıtma alt yapısı
- Artezyen
- Otomatik sulama
- Modern peyzaj












