Evo

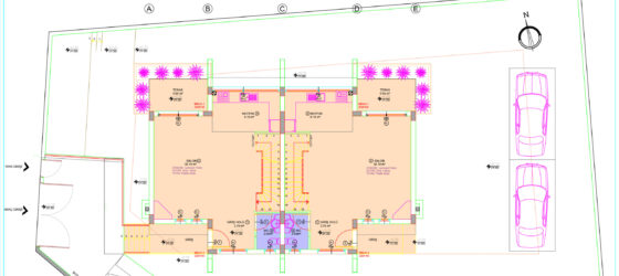
Reisdere Çeşme Yelken Evleri / 3+1 / Çeşme-İzmir

Evo

Reisdere Çeşme Yelken Evleri Proje Planı

TOP