Evo

Villa Visum / 6+2 / Çeşme-İzmir

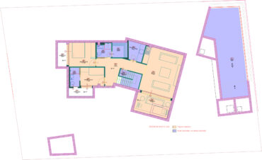
Bodrum Kat

  • YAŞAM ALANI 27,37
  • KURANGLEZ 11,42
  • HOL 12,47
  • BANYO 3,44
  • ÇAMAŞIR ODASI 4,87
  • YARDIMCI ODA+ BANYO 10,60
  • KURANGLEZ 3,52
  • SAUNA 4,00
  • TEKNİK ODA 2,58
  • MİSAFİR ODASI 11,14
  • KURANGLEZ 3,84
  • KAPALI YAŞAM ALANI 76,47
  • KURANGLEZ 18,78
  • TOPLAM KAT YAŞAM ALANI 95,25

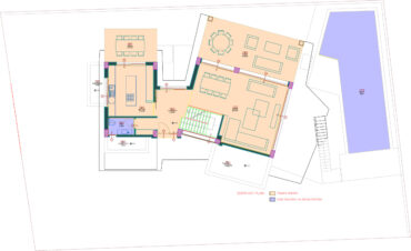
Zemin Kat

  • HOL 10,93
  • SALON 38,54
  • MUTFAK 17,04
  • WC 3,19
  • SALON TERASI 29,82
  • MUTFAK TERASI 12,32
  • HAVUZ TERASI 24,63
  • KAPALI YAŞAM ALANI 69,70
  • TERAS ALANI 66,77
  • TOPLAM KAT YAŞAM ALANI 136,47

1. Kat

  • HOL 9,45
  • EBEVEYN ODASI 20,31
  • BANYO 8,36
  • GİYİNME ODASI 5,86
  • GENEL BANYO 4,20
  • ODA 1 11,62
  • ODA 2 11,65
  • ODA 3 12,00
  • BANYO3,50
  • BALKON 24,81
  • BALKON 1 4,78
  • BALKON 2 4,59
  • BALKON 3 2,84
  • KAPALI YAŞAM ALANI 86,95
  • TERAS ALANI 37,02
  • TOPLAM KAT YAŞAM ALANI 123,97
  • TOPLAM KAPALI YAŞAM ALANI 233,12
  • TOPLAM YAŞAM ALANI 355, 69
Evo

Villa Visum Proje Adresi

                         Musalla mahallesi 1141 sokak no:2 Çeşme/İzmir

 Kolye uçları, tasmalar ve chain necklace gibi popüler kadın kolyeleri sunuyoruz. Her duruma uygun çeşitli metal ve değerli taşlardan yapılmış takılar satın alın

Evo

Villa Visum Proje Planı

TOP